The Mulberry, Number 515

Jump to:

Development Jump Navigation

Image
Marleigh Park - The Mulberry

The Mulberry, Number 515
Marleigh Park, Cambridge

This impressive four-bedroom home comes complete with a dedicated study or additional storage, designed for modern living. This home boasts a bright open-plan kitchen / dining and living area with patio doors leading onto a spacious garden. Living here offers a stylish and practical lifestyle at Marleigh Park, conveniently close to local amenities, schools, green spaces, and excellent transport links to Cambridge

Property Highlights:

  • Flexible family room perfect for relaxing, entertaining, or family time
  • Dual aspect open-plan kitchen, dining, and living area opening via patio doors onto a west-facing garden
  • Fully inclusive specification with fully integrated kitchen appliances
  • East-facing garden enjoying afternoon and evening sunshine
  • Thoughtfully designed with smart storage solutions, keeping your home organised and clutter-free

Read More

Live Where Life Flourishes

Become part of a lively, award-winning neighbourhood at Marleigh Park, where expansive green spaces, on-site amenities, and a strong sense of community come together to create a vibrant, welcoming lifestyle. Embrace an active, outdoor lifestyle across 57 acres of beautifully landscaped greenery and play areas the equivalent of 44 football pitches, perfect for exploring, playing, and unwinding.”

  • Live seamlessly with the Co‑op on-site, perfect for quick stops for dinner prep and everyday essentials.
  • Marleigh Community Centre on-site, offering social, recreational, and wellbeing activities moments from home.
  • R3FORM Pilates, offering wellness and fitness classes just steps from your door—perfect for a healthy, active lifestyle.
  • Experience the charm of our on-site Italian restaurant and deli Salento, where authentic flavors meet warm hospitality in an inviting, relaxed setting. 
  • Coming soon — PadelStars courts, high‑quality football pitches and allotments, adding exciting new sports, outdoor fun and green‑fingered living right within the community.

Seamless Travel & Connections

Life at Marleigh Park keeps you seamlessly connected, whether commuting, travelling for work, or enjoying a weekend escape. 

  • The nearby Park and Ride facilities provide a hassle-free way to reach the heart of Cambridge, helping you avoid the city centre traffic while keeping your commute stress-free.
  • Reach Cambridge Station in 20 minutes and enjoy fast, convenient access to King’s Cross and London Liverpool Street.
  • The M11, just a few miles away, gives you flexible routes across London, Cambridge and beyond
  • London Stansted Airport, approximately 40 minutes drive away, makes national and international travel simple 

Discover your Future Home 

Arrange a visit with our sales team and tour our show homes at the award-winning Marleigh Park.

Sales Suite: Newmarket Road, Cambridge, Cambridgeshire, CB5 8AA
Opening Times: Open daily, 10:00–17:30

*Stamp duty paid terms and conditions apply. This cannot be used in conjunction with any other offer and available on single stamp duty only. Savings based on a purchase price of £749,950. Speak to the Sales Team today to find out more.

Features

  • Ready to move into

  • Four bedrooms, including a principal with en-suite and fitted wardrobes

  • Fully fitted kitchen with integrated appliances

  • Separate family room to first floor

  • Study to first floor

  • Family bathroom with modern fixtures and fittings

  • Garage and EV charging

  • East facing garden

  • Energy-efficient air source heating

:
:
:
:
:
Floor Plans
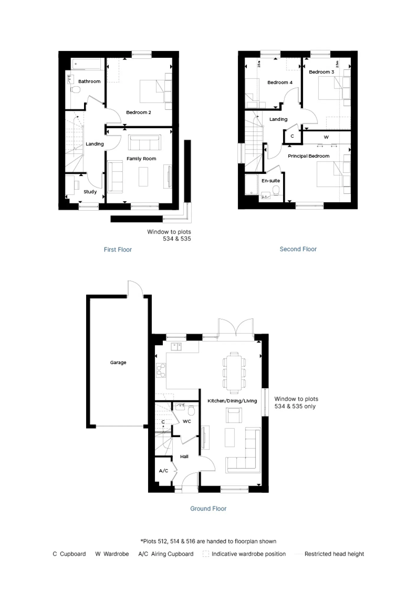
The Mulberry, Number 515 floorplan
Kitchen/Dining/Living
5.95m
 x 
8.10m
19'6" x 26'7"
Family Room
3.65m
 x 
4.20m
12'0" x 13'9"
Bedroom 2
3.65m
 x 
3.80m
12'0" x 12'6"
Study
2.15m
 x 
1.55m
7'1" x 5'1"
Principal Bedroom
4.85m
 x 
3.20m
15'11" x 10'6"
Bedroom 3
2.75m
 x 
4.00m
9'0" x 13'1"
Bedroom 4
3.05m
 x 
2.85m
10'0" x 9'4"
Image
Marleigh Park Kingsley View - The Mulberry D
Site Plan
Specifications

Kitchen

  • Matt finish handleless units with soft close to doors and drawers
  • Caesarstone worktops with matching upstand and splashback behind hob (where applicable)
  • Induction hob (with integrated extractor where on island or peninsula)
  • Integrated single oven
  • Integrated microwave
  • Integrated combi oven/microwave *
  • Integrated fridge/freezer
  • Integrated dishwasher
  • Integrated washer/dryer where in kitchen or freestanding where in utility cupboard
  • Integrated cooker hood (except where hob on island or peninsula)
  • Stainless steel under mounted sink with contemporary brushed steel mixer tap
  • LED feature lighting to wall units 

Kitchen designs and layouts vary; please speak to our Sales Executives for further information

Image
Marleigh Park, Number 412 Kitchen
Image
Marleigh Park, Number 412 Kitchen Features
Image
Marleigh Park oven
Image
Marleigh Park, The Oak Kitchen Sink

Bathroom & En-suite

Bathroom

  • Bath with shower over and glass screen
  • Bath panel to match vanity tops
  • Feature mirror with shelf
  • Feature mirror, with shelf and cabinet with LED lighting *
  • Large format wall and floor tiles
  • Heated chrome towel rail

En-suite

  • Low profile shower tray with glass shower door
  • Feature mirror with shelf (to principal en-suite only)
  • Feature mirror and cabinet with LED lighting (to principal en-suite only – where layouts allow) *
  • Large format wall and floor tiles
  • Heated chrome towel rail
Image
Marleigh Park, Number 412 Bathroom
Image
Marleigh Park, Number 412 Bathroom features
Image
Marleigh Park, Number 412 Bathroom
Image
Marleigh Park, The Oak, Hand Rail

Heating & Water

  • Underfloor heating to ground floor, radiators to upper floors
  • Heated chrome towel rails to bathrooms and en-suites
  • Air source heat pump
  • Hot water storage tank
Image
Marleigh Park, Number 412 Study
Image
Marleigh Park, Number 412 Living Room
Image
Marleigh Park, The Oak, Hand Rail
Image
Marleigh Park - The Mulberry, Number 412 - Bedroom 3

Electrical

  • Downlights to entrance hall, open plan kitchen/dining/living rooms, utility, WC, bathroom, en-suites
  • Additional downlights to principal bedroom *
  • Pendant fittings to separate family room, dining room, study, snug, landings, and bedrooms (except principal bedroom to upgraded plots)
  • LED feature lighting to wall units in kitchen
  • Electrical sockets with USB port to kitchen, study and principal bedroom *
  • Shaver sockets to bathroom and en-suites
  • TV, BT and data points to selected locations
  • Wiring for customer’s own broadband connection
  • Pre-wired for customer’s own Sky Q connection
  • External lighting to front and rear of property
  • Light and power to garages
  • Hard-wired smoke and heat detectors
  • Spur for customer’s own installation of security alarm panel
Image
Marleigh Park, Number 412 Bedroom
Image
Marleigh Park, Number 412 Hallway
Image
Marleigh Park, Number 412 Living Room
Image
Marleigh Park, Number 412 Kitchen Features

Finishes

  • White painted timber staircase with carpeted treads and risers
  • White flush internal doors with dual finish ironmongery
  • Built-in mirrored wardrobe with sliding doors to principal bedroom
  • Built-in wardrobe with hinged doors and LED lighting to principal bedroom *
  • Square cut skirting and architrave
  • Walls painted in white emulsion
  • Smooth ceilings in white emulsion
  • Amtico flooring throughout ground floor
  • Carpet to stairs, landings, upper floor family rooms and all bedrooms
  • Large format tiles to bathrooms and en-suites
  • Landscaping to front garden (where applicable)
  • Garden shed to homes with car port only
  • Turf to rear garden
  • Paved patios
  • External tap and power socket
  • PV panels (to selected plots)
Image
Marleigh Park, Number 412
Image
Marleigh Park, Number 412 Garden
Image
Marleigh Park, Number 412 External
Image
Marleigh Park - The Mulberry, Number 412 - Bedroom 3

Additional Information

  • 10 year NHBC warranty
Image
Marleigh Park, Number 412 Garden
Image
Marleigh Park, Number 412
Image
Marleigh Park, Number 412 Living Room
Image
Marleigh Park, Number 412 Living Room
Buying Calculators
Mortgage calculator

By putting in a few simple details we'll work out how much your monthly mortgage repayments could be.*

  • £

Your mortgage calculation

Deposit
Mortgage Required
Monthly Payments

*Hill do not provide mortgage advice, but our sales consultants will happily point you in the direction of an independent mortgage advisor who can help find the best deal for you.

Stamp Duty calculator

Our calculator provides a guide for how much Stamp Duty you will need to pay when purchasing your new property.*

  • £

Your Stamp Duty calculation

You pay % up to
You pay % up to
You pay % up to
You pay % up to £1,500,000
You pay % over £1,500,000
Total you pay

*First time buyers will not pay any stamp duty on property purchases below £300,000 with further relief available for transactions up to £500,000. Any property purchased over £500,000 by a first time buyer will not be eligible for SDLT relief and standard rates will apply. This calculator is provided as a guide only on how much Stamp Duty Land Tax (SDLT) you will need to pay in England and Northern Ireland. It assumes that you are a UK resident and the property is freehold and is for primary residential purposes. For more information, visit www.gov.uk/stamp-duty-land-tax.

Marleigh Park Sales Suite

Marleigh Park Sales Suite
Newmarket Road
Cambridge
Cambridgeshire
CB5 8AA
Get directions
Contact our Sales Team
01223 827 241
Opening hours
Sunday: 10:00-17:30
Monday: 10:00-17:30
Tuesday: 10:00-17:30
Wednesday: 10:00-17:30
Thursday: 10:00-17:30
Friday: 10:00-17:30
Saturday: 10:00-17:30

Marleigh Park

Marleigh Park

Developments

    Locations

      A unique collaboration between