The Boxwood, Number 547

Jump to:

Development Jump Navigation

Image
Marleigh Park - The Boxwood - Plots 547.jpg

The Boxwood, Number 547
Marleigh Park, Cambridge

A beautifully designed three-bedroom home ready to move into, featuring a spacious open-plan living area and a south-facing garden ideal for modern family life. The principal bedroom offers a stylish en-suite and fitted wardrobe, while high-spec finishes and integrated appliances add ease and convenience. Underfloor heating, a carport and EV charging complete the picture of modern, comfortable living.

Property Highlights:

  • Enjoy modern living in this beautifully designed dual-aspect, open-plan kitchen, dining, and living space, stretching across the entire ground floor—perfect for both everyday life and entertaining.
  • This east-facing home is filled with welcoming morning light, creating a bright and uplifting start to your day.
  • Upstairs, you’ll find three generously sized bedrooms, including a stunning dual-aspect principal bedroom complete with a fitted wardrobe and stylish en-suite.
  • The home features a fully inclusive specification, including a contemporary kitchen with fully integrated appliances, alongside a family bathroom finished to a high standard—blending modern elegance with everyday practicality.
  • Designed for today’s connected lifestyle, the property benefits from fibre connectivity throughout, offering flexibility in broadband providers, as well as pre-wiring for Sky Q.

Read more

Live Where Life Flourishes
Become part of a lively, award-winning neighbourhood at Marleigh Park, where expansive green spaces, on-site amenities, and a strong sense of community come together to create a vibrant, welcoming lifestyle. Embrace an active, outdoor lifestyle across 57 acres of beautifully landscaped greenery and play areas the equivalent of 44 football pitches, perfect for exploring, playing, and unwinding.”

  • Live seamlessly with the Co‑op on-site, perfect for quick stops for dinner prep and everyday essentials.
  • Marleigh Community Centre on-site, offering social, recreational, and wellbeing activities moments from home.
  • R3FORM Pilates, offering wellness and fitness classes just steps from your door—perfect for a healthy, active lifestyle.
  • Experience the charm of our on-site Italian restaurant and deli Salento, where authentic flavors meet warm hospitality in an inviting, relaxed setting. 
  • Coming soon — PadelStars courts, high‑quality football pitches and allotments, adding exciting new sports, outdoor fun and green‑fingered living right within the community.

Seamless Travel & Connections
Life at Marleigh Park keeps you seamlessly connected, whether commuting, travelling for work, or enjoying a weekend escape. 

  • The nearby Park and Ride facilities provide a hassle-free way to reach the heart of Cambridge, helping you avoid the city centre traffic while keeping your commute stress-free.
  • Reach Cambridge Station in 20 minutes and enjoy fast, convenient access to King’s Cross and London Liverpool Street.
  • The M11, just a few miles away, gives you flexible routes across London, Cambridge and beyond
  • London Stansted Airport, approximately 40 minutes drive away, makes national and international travel simple 

Discover your Future Home
Arrange a visit with our sales team and tour our show homes at the award-winning Marleigh Park.

Sales Suite: Newmarket Road, Cambridge, Cambridgeshire, CB5 8AA
Opening Times: Open daily, 10:00–17:30

*Photography represents a 3 bedroom Marleigh Park Show Home. External brick colour materials and roof elevations vary. Travel times taken from Google Maps.

Tenure:
Freehold
Service charge:
£297.21
Council tax band:
TBC

Features

  • Ready to move into

  • Spacious open plan kitchen/dining/living area

  • Three spacious double bedrooms

  • Principal bedroom features en-suite and fitted wardrobe

  • Fully inclusive specification with integrated kitchen appliances

  • Underfloor heating to the ground floor

  • South facing garden

  • Carport with EV charging

Tenure:
Freehold
Service charge:
£297.21
:
Council tax band:
TBC
:
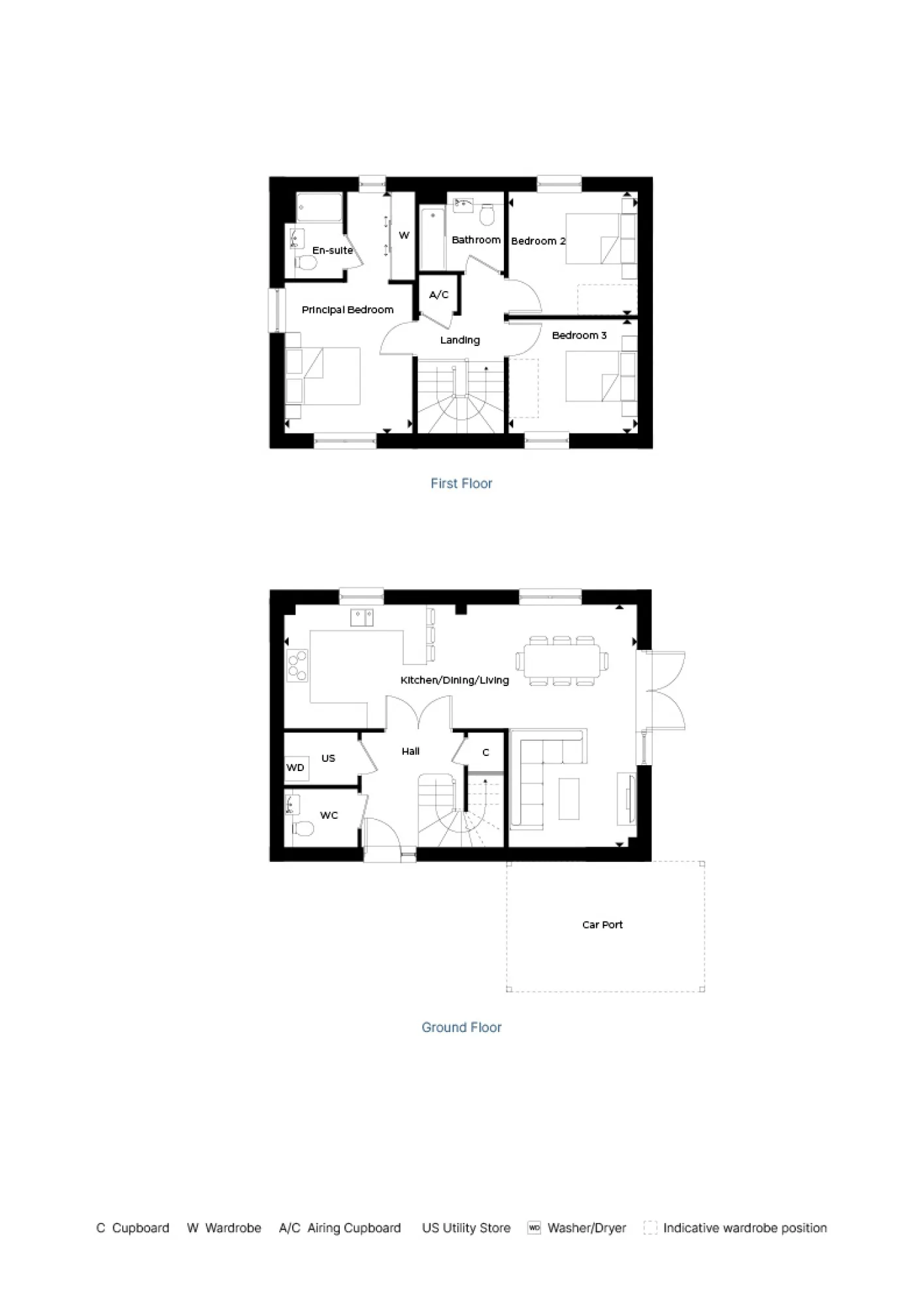
Floor Plans
The Boxwood, Number 547 Floorplans
Kitchen/Dining/Living
8.90m
 x 
5.10m
29'2" x 16'9"
Principal Bedroom
3.20m
 x 
6.10m
10'6" x 20'0"
Bedroom 2
3.20m
 x 
3.10m
10'6" x 10'2"
Bedroom 3
3.20m
 x 
2.85m
10'6" x 9'4"
Image
Marleigh Park Kingsley View - The Boxwood D
Development Plan
Image
Marleigh Park Development Plan
Site Plan
Specifications

Kitchen

  • Matt finish handless units with soft close to doors and drawers
  • Caesarstone worktops with matching upstand and splashback behind hob
  • Induction hob
  • Integrated single oven
  • Integrated microwave
  • Integrated fridge/freezer
  • Integrated dishwasher
  • Integrated washer/dryer where in kitchen or freestanding where in utility cupboard
  • Integrated cooker hood
  • Stainless steel under mounted sink with contemporary brushed steel mixer tap
  • LED feature lighting to wall units 

Kitchen designs and layouts vary; please speak to our Sales Executives for further information

Image
Marleigh Park, The Oak Kitchen
Image
Marleigh Park, The Oak Kitchen Sink
Image
Marleigh Park, The Oak Kitchen
Image
Marleigh Park, The Oak Kitchen Oven

Bathroom & En-suite

Bathroom

  • Bath with shower over and glass screen
  • Bath panel to match vanity tops
  • Feature mirror with shelf
  • Large format wall and floor tiles
  • Heated chrome towel rail

En-suite

  • Low profile shower tray with glass shower door
  • Feature mirror with shelf
  • Large format wall and floor tiles
  • Heated chrome towel rail
Image
Marleigh Park, The Oak, Bathroom
Image
Marleigh Park, The Oak, Bathroom Sink
Image
Marleigh Park, The Oak, Hand Rail
Image
Marleigh Park, The Oak, Bathroom

Heating & Water

  • Underfloor heating to ground floor, radiators to upper floors
  • Heated chrome towel rails to bathroom and en-suite
  • Air source heat pump
  • Hot water storage tank
Image
Marleigh Park, The Oak, Living Room
Image
Marleigh Park, The Oak, Bedroom
Image
Marleigh Park, The Oak, Hand Rail
Image
Marleigh Park, The Oak, Bedroom 2

Electrical

  • Downlights to entrance hall, open plan kitchen/dining/living room, utility room, WC, bathroom and en-suite
  • Pendant fittings to separate family room, study, landings, and all bedrooms
  • LED feature lighting to wall units in kitchen
  • Shaver sockets to bathroom and en-suite
  • TV, BT and data points to selected locations
  • Wiring for customers own broadband connection
  • Pre-wired for customers own Sky Q connection
  • External lighting to front and rear of property
  • Light and power to garages where applicable
  • Hard-wired smoke and heat detectors
  • Spur for customers own installation of security alarm panel
Image
Marleigh Park, The Oak, Living Room
Image
Marleigh Park, The Oak, Bathroom
Image
Marleigh Park, The Oak, Bedroom Lighting
Image
Marleigh Park, The Oak, Kitchen Lighting

Finishes

  • White painted timber staircase with carpeted treads and risers
  • White flush internal doors with dual finish ironmongery
  • Built in mirrored wardrobe with sliding doors to principal bedroom
  • Square cut skirting and architrave
  • Walls painted in white emulsion
  • Smooth ceilings in white emulsion
  • Low profile shower tray with glass shower door
  • Feature mirror with shelf
  • Large format wall and floor tiles
  • Heated chrome towel rail Bathroom
  • Bath with shower over and glass screen
  • Bath panel to match vanity tops
  • Feature mirror with shelf
  • Large format wall and floor tiles
  • Heated chrome towel rail Decorative finishes
  • White painted timber staircase with carpeted treads and risers
  • White flush internal doors with dual finish ironmongery
  • Built in mirrored wardrobe with sliding doors to principal bedroom
  • Square cut skirting and architrave
  • Walls painted in white emulsion
  • Smooth ceilings in white emulsion Floor finishes
  • Amtico flooring throughout ground floor
  • Carpet to stairs, landings, upper floor family room and study, and all bedrooms
  • Large format tiles to bathroom and en-suite
Image
Marleigh Park, The Oak, Hallway
Image
Marleigh Park, The Oak, Kitchen Lighting
Image
Marleigh Park, The Oak, Garden
Image
Marleigh Park, The Oak, Living Room

Additional information

  • 10 year NHBC warranty
Image
Marleigh Park, The Oak, Living Room
Image
Marleigh Park, The Oak, Bathroom
Image
Marleigh Park, The Oak, Bedroom
Image
Marleigh Park, The Oak, Garden
Buying Calculators
Mortgage calculator

By putting in a few simple details we'll work out how much your monthly mortgage repayments could be.*

  • £

Your mortgage calculation

Deposit
Mortgage Required
Monthly Payments

*Hill do not provide mortgage advice, but our sales consultants will happily point you in the direction of an independent mortgage advisor who can help find the best deal for you.

Stamp Duty calculator

Our calculator provides a guide for how much Stamp Duty you will need to pay when purchasing your new property.*

  • £

Your Stamp Duty calculation

You pay % up to
You pay % up to
You pay % up to
You pay % up to £1,500,000
You pay % over £1,500,000
Total you pay

*First time buyers will not pay any stamp duty on property purchases below £300,000 with further relief available for transactions up to £500,000. Any property purchased over £500,000 by a first time buyer will not be eligible for SDLT relief and standard rates will apply. This calculator is provided as a guide only on how much Stamp Duty Land Tax (SDLT) you will need to pay in England and Northern Ireland. It assumes that you are a UK resident and the property is freehold and is for primary residential purposes. For more information, visit www.gov.uk/stamp-duty-land-tax.

What our customers say

When Libby and Jiten Patel purchased their stunning five-bedroom home at The Hill Group’s Marleigh development in Cambridge, they had no idea they were buying more than just a home for their family. 

Libby explains: “If we’d known what the community was like at Marleigh, that would have been the number one draw to moving here. We were already sold on Marleigh’s other strengths and having lived in an apartment built by Hill previously; we knew the exceptional quality of the build."

Image
Marleigh Residents

Marleigh Park Sales Suite

Marleigh Park Sales Suite
Newmarket Road
Cambridge
Cambridgeshire
CB5 8AA
Get directions
Contact our Sales Team
01223 827 241
Opening hours
Sunday: 10:00-17:30
Monday: 10:00-17:30
Tuesday: 10:00-17:30
Wednesday: 10:00-17:30
Thursday: 10:00-17:30
Friday: 10:00-17:30
Saturday: 10:00-17:30

Marleigh Park

Marleigh Park

Developments

    Locations

      A unique collaboration between